|
|
| |
|
欢迎您在这里留言,我们将对您的意见和 各种反 馈信息予以回复,希
望我们的留言给您带来帮助
。感谢您对我们的支
持和厚 爱。[进入系统] |
|
|
|
|
|
|
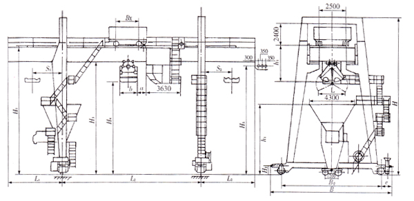
| MZ型5~10吨双梁抓斗门式起重机 | 
|
起重量(t)
|
5
|
10
|
|
跨度
|
(m)
|
18
|
22
|
26
|
30
|
35
|
18
|
22
|
26
|
30
|
35
|
|
起升高度
|
轨1:10/轨下18
|
轨1:10/轨下18
|
|
工作制度
|
A6
|
A6
|
|
速度
|
起升
(开升)
|
(m/min)
|
37.8
|
40.92
|
|
小车运行
|
49.4
|
49.6
|
|
大车运行
|
46.9
|
39.7
|
46.9
|
39.7
|
30.54
|
|
电动机
|
起升
|
(型号/KW)
|
YZR250M1-8/26
|
YZR215S-10/48
|
|
小车运行
|
YZR160M2-6/6.3
|
YZR160M2-6/8.5
|
|
大车运行
|
YZR225M-8/8.5x2
|
YZR160M-6/9x4
|
YZR225M-8/8.5x2
|
YZR160M-6/9x4
|
|
质量
|
小车
(包括抓斗)
|
(t)
|
13.8
|
17.7
|
|
总
|
86.0
|
96.8
|
100.0
|
121.3
|
126.3
|
96.9
|
112.7
|
116.5
|
131.7
|
137.5
|
|
轮压
|
30.1
|
34.6
|
35.3
|
22.2
|
22.9
|
36.6
|
22.3
|
22.7
|
25.8
|
26.6
|
|
抓斗
|
类型
|
轻型
|
中型
|
重型
|
超重
|
轻型
|
中型
|
重型
|
超重
|
|
容积(m2)
|
3
|
1.5
|
1
|
0.75
|
5
|
3
|
2
|
2
|
|
松散密度(t/m3)
|
0.8~1.0
|
1~1.9
|
2~3
|
2.5~3
|
0.8~1.0
|
1~2
|
2~3
|
2~3
|
|
质量(kg)
|
2242
|
2544
|
2370
|
2479
|
4243
|
4394
|
4663
|
3966
|
|
电源
|
三相交流 50Hz 380V
|
|
荐用钢轨(kg/m)
|
43
|
| 下一页:MZ型5~10吨双梁抓斗门式起重机 |  |
|
|
|