|
|
| |
|
欢迎您在这里留言,我们将对您的意见和 各种反 馈信息予以回复,希
望我们的留言给您带来帮助
。感谢您对我们的支
持和厚 爱。[进入系统] |
|
|
|
|
|
|
| QZ型抓斗桥式起重机 | 
|
起重量
|
t
|
5
|
10
|
16
|
|
跨度(S)
|
m
|
10.5
|
13.5
|
16.5
|
19.5
|
22.5
|
235.5
|
28.5
|
31.5
|
10.5
|
13.5
|
16.5
|
19.5
|
22.5
|
235.5
|
28.5
|
31.5
|
10.5
|
13.5
|
16.5
|
19.5
|
22.5
|
235.5
|
28.5
|
31.5
|
|
起升高度
|
m
|
20
|
18
|
22
|
|
工作级别
|
|
A6
|
|
速度
|
起升
|
m/min
|
37.9
|
39.0
|
38.8
|
|
小车运行
|
44.6
|
44.6
|
38.5
|
|
大车运行
|
92.8
|
93.7
|
86.4
|
86.9
|
85.9
|
87.3
|
|
电动机
|
起升
|
KW
|
YZR255M-8/22
|
YZR280M-10/45
|
YZR315M-10/75
|
|
小车运行
|
YZR132M-6/2.2
|
YZR132M2-6/3.7
|
YZR160M1-6/5.5
|
|
大车运行
|
YZR160M1-6/2x5.5
|
YZR160M2-6/2x7.5
|
YZR160M2-6/2x7.5
|
YZR160L-6/2x11
|
YZR180L-8/2x11
|
YZR200L-6/2x15
|
|
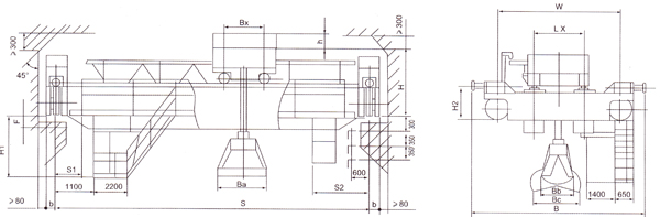
主要尺寸
(mm)
|
B
|
6150
|
6650
|
6230
|
6480
|
6880
|
|
W
|
4100
|
4600
|
4100
|
4600
|
5000
|
|
BX
|
2220
|
2900
|
3500
|
|
b
|
230
|
300
|
|
LX
|
2000
|
2500
|
|
H
|
1783
|
1786
|
1789
|
1794
|
1796
|
1800
|
1803
|
1806
|
2058
|
2061
|
2064
|
2067
|
2070
|
2073
|
2076
|
2076
|
2686
|
2689
|
2692
|
2695
|
2698
|
2703
|
2706
|
2711
|
|
H1
|
2316
|
2466
|
2536
|
2616
|
2766
|
2963
|
3066
|
3216
|
2303
|
2423
|
2553
|
2703
|
2853
|
3003
|
3103
|
3253
|
2248
|
2378
|
2628
|
2778
|
2978
|
3080
|
3080
|
3086
|
|
H2
|
725
|
821
|
1011
|
|
S1
|
1467(1563)
|
1764(1860)
|
2065(2170)
|
|
S2
|
1500
|
1730
|
2030
|
|
F
|
26
|
176
|
246
|
326
|
476
|
676
|
776
|
926
|
13
|
133
|
263
|
413
|
563
|
713
|
813
|
963
|
-42
|
88
|
338
|
488
|
688
|
790
|
790
|
794
|
|
h
|
226
|
226
|
226
|
|
重量
|
小车
|
t
|
4.23(4.6)
|
8.16(8.61)
|
14.8(15.7)
|
|
总重
|
室内
|
18.3
|
19.8
|
21.7
|
23.8
|
26.7
|
30.9
|
34.4
|
39.6
|
26.5
|
28.2
|
31.0
|
34.5
|
37.4
|
41.2
|
44.8
|
47.8
|
32.0
|
34.4
|
36.1
|
40.1
|
43.6
|
46.1
|
50.8
|
55.1
|
|
室外
|
18.7
|
20.2
|
22.1
|
24.2
|
27.1
|
31.3
|
34.7
|
40.0
|
27.0
|
28.7
|
31.5
|
35.0
|
37.9
|
41.7
|
45.3
|
48.3
|
32.8
|
35.2
|
36.9
|
40.9
|
44.4
|
46.9
|
51.6
|
55.9
|
|
轮压
|
室内
|
t
|
7.7
|
8.3
|
9.1
|
9.3
|
10.0
|
11.1
|
11.1
|
11.9
|
11.9
|
12.5
|
13.3
|
14.2
|
15.0
|
16.1
|
17.0
|
17.6
|
27.1
|
28.2
|
29.5
|
30.8
|
31.9
|
33.2
|
34.2
|
35.4
|
|
室外
|
7.9
|
8.5
|
9.5
|
9.7
|
10.4
|
11.5
|
11.8
|
12.4
|
12.4
|
13.1
|
13.8
|
14.8
|
15.6
|
16.7
|
17.7
|
18.4
|
27.5
|
28.6
|
30.0
|
31.3
|
32.5
|
33.7
|
34.7
|
36.1
|
|
抓斗
|
型号
|
u
|
U3
|
U2
|
U1
|
U6
|
U5
|
U4
|
U9
|
U8
|
U7
|
|
类型
|
轻型
|
中型
|
重型
|
轻型
|
中型
|
重型
|
轻型
|
中型
|
重型
|
|
容积
|
m3
|
2.5
|
1.5
|
1
|
5
|
3
|
2
|
8
|
4.8
|
3.2
|
|
容量
|
t/m3
|
0.5~1.0
|
1.0~1.8
|
1.8~2.9
|
0.5~1.0
|
1.0~1.8
|
1.8~2.9
|
0.5~1.0
|
1.0~1.8
|
1.8~2.9
|
|
自重
|
kg
|
2285
|
2248
|
2065
|
4616
|
4400
|
3898
|
7841
|
7993
|
8008
|
|
主要尺寸
(mm)
|
Ba
|
1570
|
1324
|
1224
|
1988
|
1642
|
1412
|
2350
|
2078
|
1792
|
|
Bb
|
2590
|
2310
|
10
|
3150
|
2850
|
2610
|
3515
|
3135
|
2915
|
|
Bc
|
3227
|
2798
|
2554
|
3790
|
3308
|
3070
|
4380
|
4050
|
3750
|
|
荐用钢轨
|
43kg/m QU70
|
|
电源
|
三相交流 50HZ 380V
|
|
|  |
|
|
|