|
|
| |
|
欢迎您在这里留言,我们将对您的意见和 各种反 馈信息予以回复,希
望我们的留言给您带来帮助
。感谢您对我们的支
持和厚 爱。[进入系统] |
|
|
|
|
|
|
| MH型电动葫芦门式起重机 | 
|
起重量
|
t
|
5
|
10
|
|
起升高度
|
m
|
8
|
9
|
|
工作级别
|
A5
|
A5
|
|
跨度
|
m
|
13
|
15
|
18
|
22
|
26
|
30
|
13
|
15
|
18
|
22
|
26
|
30
|
|
起重机总重
|
t
|
15.8
|
17.2
|
18.8
|
21.2
|
23.8
|
27.1
|
20.4
|
22.1
|
24.2
|
27.8
|
31.7
|
35.9
|
|
轮压
|
t
|
8.4
|
8.7
|
9.1
|
9.9
|
10.3
|
10.8
|
12
|
12.5
|
13.2
|
14.2
|
15.4
|
16.8
|
|
起重机运行
|
运行速度
|
m/min
|
26.7
|
24.2
|
24.7
|
|
电动机
|
型号
|
YZR132M1-6
|
YZR132M2-6
|
YZR132M2-6
|
YZR160M1-6
|
|
功率
|
Kw
|
2.2x2
|
3.7x2
|
3.7x2
|
5.5x2
|
|
转速
|
R.P.M
|
906
|
906
|
906
|
930
|
|
电动葫芦
|
速度
|
起升
|
m/min
|
8
|
7
|
|
运行
|
m/min
|
20
|
20
|
|
起重电动机
|
功率
|
kw
|
7.5
|
13
|
|
转速
|
R.P.M
|
1400
|
1400
|
|
电流
|
A
|
16.5
|
28
|
|
运行电动机
|
功率
|
kw
|
0.8
|
0.8x2
|
|
转速
|
R.P.M
|
1380
|
1380
|
|
电流
|
A
|
2.2
|
2.2x2
|
|
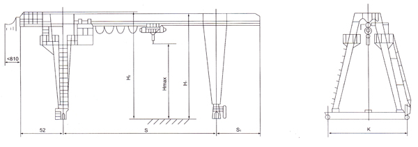
主要尺寸
|
S1
|
mm
|
4000
|
6000
|
4000
|
6000
|
|
S2
|
4000
|
6000
|
4000
|
6000
|
|
H1
|
8000
|
8300
|
8600
|
10400
|
10600
|
10800
|
|
H2
|
8500
|
9000
|
10900
|
11200
|
|
K
|
5000
|
6500
|
6500
|
7500
|
|
适用轨道
|
38kg/m 43kg/m
|
|
|
|  |
|
|
|