|
|
| |
|
欢迎您在这里留言,我们将对您的意见和 各种反 馈信息予以回复,希
望我们的留言给您带来帮助
。感谢您对我们的支
持和厚 爱。[进入系统] |
|
|
|
|
|
|
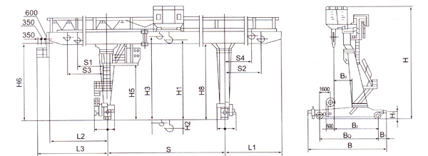
| MDG型单柱门式起重机 | 
|
起重量
|
t
|
5
|
10
|
16/3.2
|
|
工作制度
|
|
A5
|
|
跨度
|
S
|
18
|
23
|
26
|
30
|
35
|
18
|
23
|
26
|
30
|
35
|
18
|
23
|
26
|
30
|
35
|
|
起升高度(m)
|
H1
|
10
|
11
|
10
|
11
|
10
|
11
|
|
H2
|
1
|
2
|
1
|
2
|
1
|
|
H3
|
|
10.5
|
11.5
|
|
H4
|
|
5.5
|
4.5
|
|
速度
|
起升
|
主
|
m/min
|
12.6
|
9.64
|
9.52
|
|
副
|
|
|
22.7
|
|
小车运行
|
38.9
|
39.74
|
39.3
|
|
大车运行
|
45.8
|
46.3
|
39.6
|
40.1
|
39.6
|
40.1
|
39.6
|
40.1
|
|
电动机
|
起升
|
主
|
|
YZR160L-6/13
|
YZR200L-8/18.5
|
YZR225M-8/26
|
|
副
|
KW
|
|
|
YZR160L-6/1.3
|
|
小车运行
|
|
YZR132M1-6/2.5
|
YZR132M2-6/4
|
YZR160M1-6/6.3
|
|
大车运行
|
|
YZR160M1-6/2x6.3
|
YZR160M2-6/2x8.5
|
YZR160L-6/2x13
|
YZR160M2-6/2x8.5
|
YZR160L-6/2x13
|
YZR160M2-6/2x8.5
|
YZR160L-6/2x13
|
|
主要尺寸(mm)
|
H
|
12889
|
13889
|
13545
|
14545
|
13765
|
14765
|
|
H5
|
6647
|
6847
|
7647
|
7447
|
7251
|
7051
|
7551
|
7137
|
6947
|
7597
|
7494
|
|
H6
|
9610
|
9530
|
10360
|
10360
|
9950
|
10950
|
9940
|
3780
|
10780
|
|
H7
|
577
|
680
|
|
H8
|
9447
|
9347
|
9297
|
10097
|
9897
|
9781
|
9681
|
10281
|
10181
|
9677
|
9577
|
9477
|
10277
|
1017
|
|
L1
|
6117
|
6717
|
8717
|
7027
|
9.27
|
7217
|
9217
|
|
L2
|
6717
|
8717
|
7027
|
9.27
|
7217
|
9217
|
|
L3
|
8074
|
10074
|
8380
|
10380
|
8527
|
10512
|
|
L4
|
591.5
|
647.5
|
622.5
|
652.5
|
622.5
|
652.5
|
622.5
|
652.5
|
|
L5
|
664
|
732
|
|
|
S1S2
|
5000
|
7000
|
5000
|
7000
|
5000
|
7000
|
|
S3
|
|
5250
|
7250
|
|
S4
|
|
4750
|
6750
|
|
B
|
7460
|
8529
|
9029
|
8529
|
9029
|
|
B1
|
602
|
608
|
|
B2
|
3870
|
4428
|
4430
|
4310
|
4596
|
4310
|
4596
|
|
B3
|
1920
|
1800
|
|
BQ
|
6000
|
7000
|
7500
|
7000
|
7500
|
|
重量
|
小车
|
t
|
~2.95
|
~4.25
|
~8.31
|
|
总重
|
t
|
32.6
|
34.8
|
41.1
|
46.8
|
51.8
|
41.4
|
45.6
|
48.6
|
58.1
|
62.3
|
49.0
|
53.0
|
58.2
|
68.3
|
22.4
|
|
轮压
|
|
16.0
|
16.6
|
18.5
|
27.3
|
23.3
|
22.5
|
23.6
|
23.9
|
28.6
|
32.0
|
29.8
|
30.6
|
31.0
|
37.0
|
38.3
|
|
荐用钢轨
|
小车
|
15kg/m
|
24kg/m
|
|
大车
|
43kg/m
|
|
电源
|
三相交流 50Hz 380V
|
|
|  |
|
|
|