|
|
| |
|
欢迎您在这里留言,我们将对您的意见和 各种反 馈信息予以回复,希
望我们的留言给您带来帮助
。感谢您对我们的支
持和厚 爱。[进入系统] |
|
|
|
|
|
|
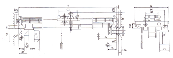
| LH型16/5~20/5吨电动葫芦双梁桥式起重机 | 
|
起重量
|
t
|
16/5
|
20/5
|
|
跨度(S)
|
s
|
13.5
|
16.5
|
19.5
|
22.5
|
13.5
|
16.5
|
19.5
|
22.5
|
|
轮压
|
t
|
13.6
|
14.1
|
14.9
|
15.5
|
14.2
|
14.8
|
15.4
|
16.0
|
|
重量
|
地面操纵
|
kg
|
12.26
|
14.6
|
16.8
|
19.2
|
12.68
|
14.88
|
17.22
|
19.68
|
|
操纵室开式
|
12.76
|
15.1
|
17.3
|
19.7
|
13.18
|
15.38
|
17.22
|
20.18
|
|
操纵室闭式
|
12.85
|
15.2
|
17.4
|
19.8
|
13.27
|
15.47
|
17.81
|
20.27
|
|
工作制度
|
A5
|
A5
|
|
速度
|
起升
|
m/min
|
6/8
|
6/8
|
|
小车运行
|
20
|
20
|
|
大车运行
|
地面
|
30
|
30
|
|
操纵室
|
45
|
45
|
|
电动机
|
起升
|
型号/功率KW
|
ZDx51-6/18.5/ZD141-4/7.5
|
ZDx51-4/18.5/ZD141-4/7.5
|
|
小车运行
|
ZD122-4/1.5
|
ZD122-4/1.5
|
|
大车运行
|
地面
|
YZR132M2-6
|
YZR132M2-6
|
|
操纵室
|
YZR160M1-6
|
YZR160M1-6
|
|
电动葫芦
|
型号
|
|
HC16
|
HC16
|
|
起升高度
|
m
|
6,12,18,24
|
9,12,18,24
|
|
工作制度
|
JC=25%
|
JC=25%
|
|
电源
|
三相交流 50HZ 380V
|
三相交流 50HZ 380V
|
|
适用大车轨道
|
43kg/m
|
43kg/m
|
|
主要尺寸
|
B
|
mm
|
4720
|
4020
|
|
BQ
|
4000
|
4000
|
|
BX
|
2400
|
2400
|
|
LQ
|
2000
|
2000
|
|
H
|
1400
|
1430
|
|
H1
|
178
|
328
|
478
|
628
|
178
|
328
|
478
|
628
|
778
|
|
H2
|
2040
|
2040
|
|
H3(H4)
|
385(187.5)
|
348(224.5)
|
|
S1(S3)
|
1590(820)
|
1630(980)
|
|
S2(S4)
|
1470(2240)
|
1690(2340)
|
| 上一页:LH型5~10吨电动葫芦双梁桥式起重机
|  |
|
|
|